Barndominium With Rv Port - The Cutest Barndominium Ranchette 1570 Haley Holden Texas Luxury Land Facebook : It is as simple as that.

Barndominium With Rv Port - The Cutest Barndominium Ranchette 1570 Haley Holden Texas Luxury Land Facebook : It is as simple as that.. Texas barndominiums, texas metal homes, texas steel homes. As an additional bonus, this metal barndominium comes with a large garage, 5000 sq.ft. Dec 7 2019 explore jim johnson homes s board rv barndominium on pinterest. Putting an average cost on a barndominium kit is difficult. + floor plans typically range from 1,000 to 5,000 square feet.

Carports, rv and boat storage; + huge garages are common in barndominium designs. (972) 524 1402 visit our facility: The plans below are to stimulate your mind into an imagining of what your dream barndominium might look. Our customers get to pick layout, size, options, colors, etc.

Residential Steel Metal Building Erector Contractor Victoria Texas
Residential Steel Metal Building Erector Contractor Victoria Texas from www.victoriasteelerectors.com
As an additional bonus, this metal barndominium comes with a large garage, 5000 sq.ft. Is a fully customizable home with an attached workshop. Putting an average cost on a barndominium kit is difficult. The portico allows the car garage door to be open to the outside world without rain blowing in. Barndominiums can be a slab, crawl space, or a basement foundation. It also has a laundry space with a door leading to the outside, which makes laundry very easy. Barndominiums can be a slab, crawl space, or a basement foundation. The virginia floor plan is two story 4 bedroom, 4 bathroom and has an office, front porch, deck and a loft with bedroom and bathroom.

It's just like a small house.

As an additional bonus, this metal barndominium comes with a large garage, 5000 sq.ft. Air conditioning, tv, satellite or cable, washer & dryer, parking, no smoking, heater bedrooms: This barndominium floor plan is all you need for you and your family. It is as simple as that. Is a fully customizable home with an attached workshop. + some barndominiums incorporate both living spaces and workshops. Our customers get to pick layout, size, options, colors, etc. Our rv port barndominium my photo gallery. Our homes are custom built per our customers specifications. 2 bedroom barndominium example 1. Of space that can either function as a four bedroom apartment or. The possibilities as far as what you can do with your barndominium are virtually limitless, but these sustainable, economical buildings offer numerous benefits for buyers, among them: See more ideas about garage house plans, barndominium floor plans, house plans.

The portico allows the car garage door to be open to the outside world without rain blowing in. Putting an average cost on a barndominium kit is difficult. Our customers get to pick layout, size, options, colors, etc. Barndominiums can be a slab, crawl space, or a basement foundation. Air conditioning, tv, satellite or cable, washer & dryer, parking, no smoking, heater bedrooms:

About Texas Building Center Kingsland Tx Barndominium
About Texas Building Center Kingsland Tx Barndominium from le-cdn.hibuwebsites.com
Texas barndominiums, texas metal homes, texas steel homes. The possibilities as far as what you can do with your barndominium are virtually limitless, but these sustainable, economical buildings offer numerous benefits for buyers, among them: It is as simple as that. + floor plans typically range from 1,000 to 5,000 square feet. It's just like a small house. The home has enough room inside to park an rv and comes. You also can covert part of this garage into your workshop or a storage system. Our customers get to pick layout, size, options, colors, etc.

17 coolest barndominium floor plan with pool that turn your home into a fairy tale metal house plans barndominium floor plans shop house plans.

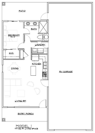
Texas barndominiums, texas metal homes, texas steel homes. + floor plans typically range from 1,000 to 5,000 square feet. It's 2500 sf under roof, with a 20' x 50' rv port, 30' x 35' apartment on 1st level, utilities and walk in storage on 2nd level off of a 15' x 18' loft. + barndominiums feature wide open flows of space. Small backyard patio backyard retreat my photo gallery photo galleries country house plans barn house plans country living rv storage vehicle storage. Of space that can either function as a four bedroom apartment or. Putting an average cost on a barndominium kit is difficult. The possibilities as far as what you can do with your barndominium are virtually limitless, but these sustainable, economical buildings offer numerous benefits for buyers, among them: This floor plan is a masterpiece with all the essentials that make a complete 2 bedroom plan. It's 2500 sf under roof, with a 20' x 50' rv port, 30' x 35' apartment on 1st level, utilities and walk in storage on 2nd level off of a 15' x 18' loft. The rooms wraps around a great room a spacious kitchen and dining area. 2 bedroom barndominium example 1. Air conditioning, tv, satellite or cable, washer & dryer, parking, no smoking, heater bedrooms:

The portico allows the car garage door to be open to the outside world without rain blowing in. Of space that can either function as a four bedroom apartment or. Putting an average cost on a barndominium kit is difficult. See more ideas about garage house plans, barndominium floor plans, house plans. Zillow has 354 homes for sale in texas matching barndominium.

Barndominium Pricing And Floor Plans
Barndominium Pricing And Floor Plans from www.absolutesteeltx.com
The virginia barndominium plan has approximately 3,500 sq ft of living area. + some barndominiums incorporate both living spaces and workshops. It's 2500 sf under roof, with a 20' x 50' rv port, 30' x 35' apartment on 1st level, utilities and walk in storage on 2nd level off of a 15' x 18' loft. Barndominiums can be a slab, crawl space, or a basement foundation. 2 bedroom barndominium example 1. Looking for barndominium house plans or more information about building a barndominium visit www.barndominiumfloorplans.com a barndominium is a metal building with inside living quarters. This barndominium floor plan is all you need for you and your family. See next plan for interior layout.

Barndominiums can be quite sophisticated in their design and may have features that rival even luxury homes.

The rooms wraps around a great room a spacious kitchen and dining area. See more ideas about garage house plans, barndominium floor plans, house plans. Our rv port barndominium my photo gallery. Carports, rv and boat storage; 17 coolest barndominium floor plan with pool that turn your home into a fairy tale metal house plans barndominium floor plans shop house plans. (972) 524 1402 visit our facility: Putting an average cost on a barndominium kit is difficult. Barndominium homes are affordable, have very low maintenance, and are energy efficient. + floor plans typically range from 1,000 to 5,000 square feet. *** note most likely the barndominium home plan will need to have a metal framed building to have the second floor. It's 2500 sf under roof, with a 20' x 50' rv port, 30' x 35' apartment on 1st level, utilities and walk in storage on 2nd level off of a 15' x 18' loft. Barndominiums can be a slab, crawl space, or a basement foundation. The plans below are to stimulate your mind into an imagining of what your dream barndominium might look.

This plan has all the basics from a classic master bedroom to the second bedroom fit for use by other members rv barndominium. The name denotes that it is a fusion of a barn and a condominium.

Komentar